I bought it in 2008 and converted and added the showers.

Log cabin toiletshower block.
Whatever your requirements we have toilet and shower cabins to suit every eventuality at the most competitive prices.
Our mobile shower facilities are ideal for rental companies private and corporate use high society events sporting events construction and anyone needing quality mobile shower and toilet facilities.
All our high powered shower cabins can be mains connected or operated as mains free facilities on your site.
We fitted 4 velux windows in the building.
Was originally a boys girls toilets in a school.
Wooden shed toilet block perfect for campsite or renovations etc 6 foot by 8 foot shed adapted for use as a toilet block.
High levels of customer satisfaction low cost toilet blocks portable toilets mobile on site.
Toilet and shower units are ideal for a wide range of businesses including construction sites transport companies seasonal workers and tenants on rented sites.
The toilet block has been in use for about nine months.
Toiletshower block 5m x 3m pembrokeshire wales this is a portacabin built in 19901991.
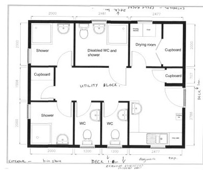
In the male section we have one toilet one shower and one urinal and two wash basins.
There is a immersion copper tank with 2 immersion heaters.
The shed is from simply sheds in midlothian lined with plasterboard and partitioned into two cubicles.
Security lighting to the outside and proximity switches for all internal lighting to save.
To learn more about cost effective portable toilet block solutions portable showers single chemical toilets and pre fabricated modular changing room solutions contact us today.
We offer several mobile shower units that cater for every situation and requirement.
Our buildings can be supplied as single portable toilet blocks shower blocks or a mixture of shower and toilets combined.
Shower block log cabin this 6 profiled log cabin shower block has 10 separate shower cubicles each one completely tiled and with its own sink and 1 disabled shower area which also includes a toilet.
Great value cabins and containers supply toilet shower and welfare facilities in both traditional jackleg and steel anti vandal specifications bespoke built to individual client requirements.
Theyre particularly useful in bathrooms that use water with high calcium concentration and in bathrooms that have many users throughout the day.
Toilet blocks or toilet rim blocks are an essential part of a clean bathroom.
Toilets and shower units.
Container cabins high quality new used toilet blocks.
We also offer a standard range of mains toilet and shower units available for immediate despatch from various locations.
Single and double toilets showers and multi cubicle toilets available for sale in the uk.
You can find a wide range of toilet blocks each with unique properties on ebay.
Toilet Shower Block Female Male Disabled Picture Of Camp
Toilet And Shower Block Rj Joinery
Carter Accommodation
The Hunter Road Stagecoach Stop Bed And Breakfast
Modular Buildings Portable Cabin Portable Building Toilet Shower
Eco Waterless Compost Toilet
Secondhand Toilet Units Shower Units Toilet And Shower Block
Toilet And Shower Block With Shed Loo Picture Of The Hideout
Campsite Showers Toilets Washroom Paragon Space Modular Buildings Uk
Birmingham Clubs For Young People Earlswood Log Cabin Camp Site
Toilet And Shower Block With Shed Loo Picture Of The Hideout
20 Best Glamping Sites In The Uk Yurts Cabins And Huts Travel
Bathhouse Kits Log Structures Conestoga Log Cabins
Mobile Toilet Blocks For Campsites In The Uk
Toilet Shower Blocks For Sale Uk Site Toilets Welfare
Ablution Block Canberra Hire All Your Hire Equipment In One Place
Build Your Own Modern Outhouse Dwell
Twin Outdoor Shower Cubicle Composting Toilets All Products
Toilet And Shower Block For Forest Park 3d Cad Model Library
Camp Katur Communal Gallery
Kloofs Caravan Park Heated Toilet And Shower Block Facilities
Shower Block Log Cabin British Log Cabins
New Toilet And Shower Block May 2018 Picture Of Orcaber Farm
Award Winning Toilets And Showers Green Hill Farm Caravan And
New Facilities For Campers At Somermead Girlguiding Somerset County
Shower Block Log Cabin British Log Cabins
28 X 10 Portable Cabin Shower Toilet Block Modular Building
Property118 Can I Let A Log Cabin In My Garden Property118
Hidden Valley Camping Outdoor Toilet Outdoor Camping Shower
Cabins
Transportable Shower Toilet Block Camper Trailers Gumtree
Wooden Camping Pods Camping Cabins Arch Leisure Camping Pods
Timber Toilet And Shower Block Rj Joinery
Toilet Blocks Portable Toilets Container Cabins Ltd
Portable Toilet Shower Rooms Campsite Toilet Blocks Arch
Our New Shower And Toilet Block Is The Oaks Lakes Fishing
Toilet Shower Block Lincs Cabins
Identifying Plumbing In Basement W Rough In Cheap Bathroom
The Toilet And Shower Block By The Communal Kitchen Picture Of
Luxury Glamping Pods For Sale Buy Or Lease These And Camping
Toilet Shower Blocks For Sale Uk Site Toilets Welfare
New Toilet And Shower Block Open 5 Star Holiday Park Cofton
Glamping Caravan Camping Site Toilet Shower Blocks Vtv Uk
Hozblok With Toilet Woodsheds Shower And Other Buildings Under
Portable Shower Cabins Second Hand Toilet Units For Sale Tf
The Best Campsite Showers Possible
Shower Block Log Cabin British Log Cabins
Brewery Farm Campsite For Caravans Trailer Tents Motorhomes And
Deluxe Portable Shower Toilets From Bunkabin
Amenity Blocks Manufacture Oip Static Caravan Services Dewsbury
Toilet And Shower Block At Caravan Site Cl Stock Photo 29921302
Midlands Portable Buildings
Shower Block Log Cabin British Log Cabins
Secondhand Toilet Units Shower Units Toilet And Shower Block
Toilet Shower Block Picture Of Roosevelt Lodge Cabins
Secondhand Portable Buildings Toilet Cabins Campsite Caravan
Toilet Log Cabins Garden Office Garden Studio Uk
How To Build A Camping Shower With Tankless Water Heater Youtube
Shower Block Container Conversions Lion Containers Ltd
Swiss Farm Henley On Thames Glamping Cabins
Neil On Twitter I Particularly Like The Stargazing
N Gauge Campsite Toilet Block Building Or Pit Head Showers For
Restroom Shower Romtec Inc
Wooden Toilet Block 36ftx12ft 8 Shower Rooms 4 Ladies 4 Gents
Secondhand Toilet Units Shower Units Toilet And Shower Block
Disabled Access Compost Toilet Block Outdoor Toilet Outdoor
Brick Block Toilet Upgrade 2018 Youtube
Possum Cabin Budget Durras North Accommodation Durras North Park
Glamping Caravan Camping Site Toilet Shower Blocks Vtv Uk
24 X 12 Portable Cabin Shower Toilet Block Modular Building
Our Glamping Pods Sleep Up To 6 And Range From Basic To Luxury
24 X 12 Portable Cabin Shower Toilet Block Modular Building
Cabin Living Shower Toilet Block For Camp Sites
Toilet Shower Block Lincs Cabins
Cabin Living Shower Toilet Block For Camp Sites
Twin Outdoor Shower Cubicle Composting Toilets All Products
Toilet And Shower Block Rj Joinery
Shower Block Log Cabin British Log Cabins
Toilet And Shower Block 2 Toilets 2 Showers With Gas Powered
Shower Toilet Block Finlay Park Adventure Camp
Neil On Twitter I Particularly Like The Stargazing
Home
Mobile Toilet And Shower Cabin Ideal For Campsites
Secondhand Toilet Units Shower Units Toilet And Shower Block
Composting Toilets All Products
Facilities
Secondhand Portable Buildings Portable Shower Blocks
Toilet Shower Block With Washroom Washroom Outdoor Bathrooms
Shipping Container Shower Block In Cromwell Trade Me
28 X 12 Portable Cabin Shower Toilet Block Modular Building
Shower Block Log Cabin British Log Cabins
Portable Campsite Toilet And Shower Blocks For Sale For Leisure
28 X 12 Portable Cabin Shower Toilet Block Modular Building
Our Facilities
Washrooms And Toilet And Shower Blocks For Campsites Arch
Toilet Blocks Portable Toilets Container Cabins Ltd
Neil On Twitter I Particularly Like The Stargazing
Campsite Washing Rooms Toilet And Shower Blocks With Ambulant And